批前公示
日期:
2023年09月08日 08:15
作者:
点击:[
]
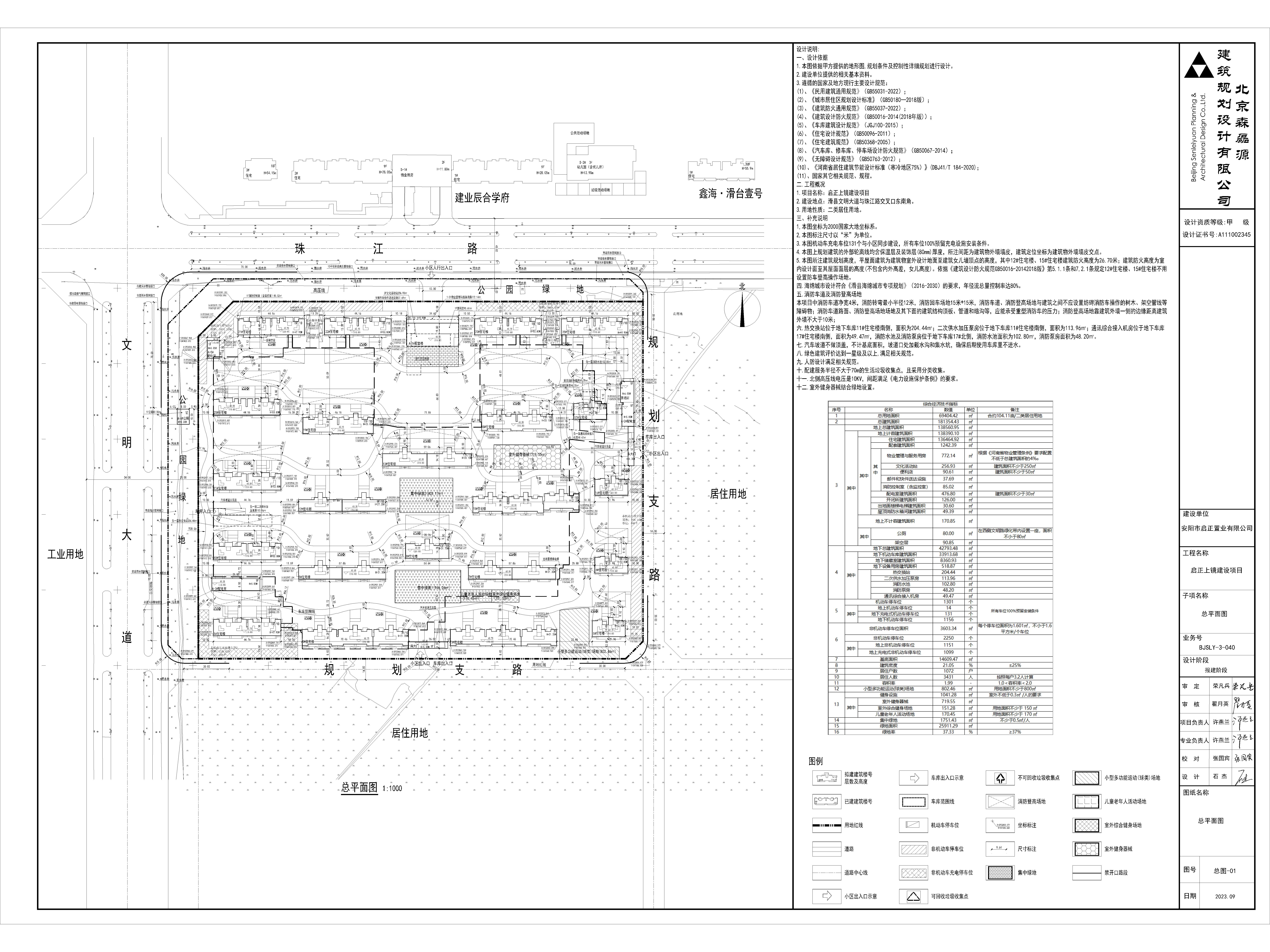
项目名称:启正上镜建设项目
建设单位:安阳市启正置业有限公司
项目位置:滑县文明大道与珠江路交叉口东南角
用地面积:69404.42平方米
建筑面积:181354.43平方米
公示期限:7个工作日
公示日期:2023年9月8日 至 2023年9月18日
网站地址:http://guotuju.hnhx.gov.cn
联系电话:8181572、8060299
联系地址:滑县自然资源局


项目名称:启正上镜建设项目
建设单位:安阳市启正置业有限公司
项目位置:滑县文明大道与珠江路交叉口东南角
用地面积:69404.42平方米
建筑面积:181354.43平方米
公示期限:7个工作日
公示日期:2023年9月8日 至 2023年9月18日
网站地址:http://guotuju.hnhx.gov.cn
联系电话:8181572、8060299
联系地址:滑县自然资源局

